新築戸建
横浜市南区中村町三丁目193-5


建物
| 物件名 | (新築戸建)南区中村町3丁目 |
|---|---|
| 価格 | ★ご成約★ |
| 所在地 | 横浜市南区中村町三丁目193-5 |
| 交通 | 地下鉄ブルーライン線「阪東橋」駅徒歩9分 |
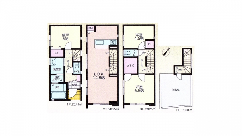
| 専有面積 | 85.22 |
| 間取 | 2SLDK |
| 構造/階建 | 木造スレート葺3階建 |
土地
| 土地面積 | 43.75㎡(登記簿) |
|---|---|
| 権利 | 所有権 |
| 都市計画/用途地域 | 市街化区域/近隣商業地域 |
| 建ぺい率/容積率 | 80%/300% |
その他
| 駐車場 | 無 |
|---|---|
| 現況 | 建築中 |
| 引渡 | 令和4年9月末(予定) |
| 備考欄 | 建築確認番号:第22KAK建確00642号(令和4年5月16日) 備考:本物件には、水道加入金・設備負担金・外構費を含んでいます。建物表示登記費用100,000円(税込)が必要になります。 |
東南道路で陽当たり良好です。屋上には広々としてルーフバルコニーがあります。


